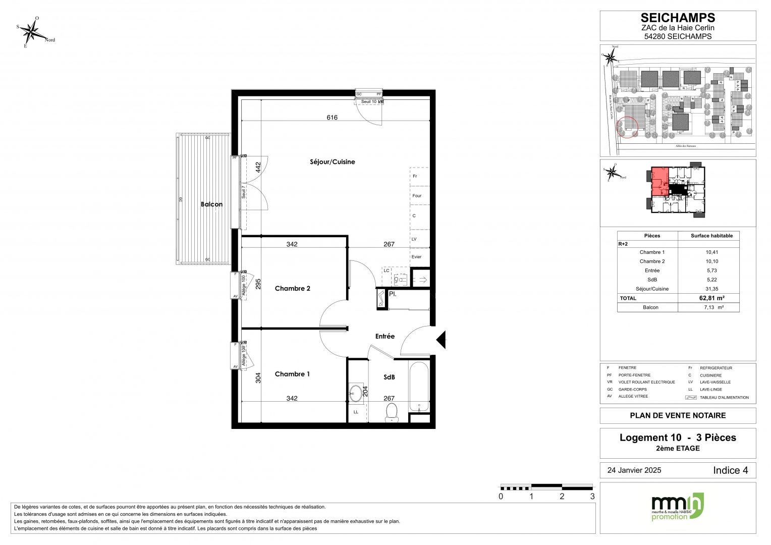
Appartement3 pièces - 62.81 m²1 allée des Sureaux
SEICHAMPS
Favoris
SEICHAMPS
3
62.81 m²
Référence : Lot 10
2 chambres à coucher
2ème étage sans ascenseur
1 place de parking
Description
Nouvelle Résidence – Appartement 3 pièces neuf à acheter !Venez découvrir cet appartement neuf au confort moderne, idéalement situé dans un quartier calme à SEICHAMPS.
Ce 3 pièces vous offrira tout l'espace et le bien-être dont vous avez besoin.
Caractéristiques de l'appartement :
- Superficie : 62,81 m²
- Type : 3 pièces (T3)
- Cuisine ouverte sur un lumineux séjour
- Balcon de 7 m²
- 2 chambres
- Salle de bains moderne équipée avec baignoire, sèches-serviettes, meuble vasque avec miroir et applique lumineuse, wc.
- Emplacement de parking privatif
- Localisation
- Architecture contemporaine
- Equipements : Accès sécurisé, double vitrage, volets roulants motorisés, parquet stratifié dans toutes les pièces et carrelage dans les pièces d'eau, salle d'e bains équipée
- Chauffage gaz produit par une chaudière individuelle à condensation
Prix :
* 173 000 € TTC dans le cadre d'une acquisition en location-accession
(Part locative : 558€/mois hors charges)
Contactez-nous dès maintenant pour plus d'informations !
Télécharger le plan
Cette annonce vous intéresse
Indiquez vos coordonnées et nous vous recontactons.

